Website

Passwort

Ein kurzer Schutz, damit nur Interessent:innen mit Passwort die Inhalte sehen.

Passwort habt ihr von uns per Mail.

3 Häuser • Flexible Teilung • Gerswalde

Herrenkoppel

Herrenkoppel ist ein Baugruppenprojekt mit drei Häusern, die dasselbe äußere Erscheinungsbild teilen. Je nach Teilung sind 4–6 Parteien/Haushalte möglich. Teil der Gruppe sind Daniel Schnitterbaum und Niklas Fanelsa.

Plangebiet

ca. 5.880 m²

Einheiten

3 + 1

Blick über die Uckermark

Blick über die Uckermark (Render)

Die Vision

Herrenkoppel ist als Ensemble konzipiert: ruhig, lesbar und in der ländlichen Realität verwurzelt. Atelier Fanelsa steht für ein zeitgenössisches ländliches Bauen, das lokale Typologien respektiert, aber neu interpretiert. Ein gemeinsames äußeres Design schafft Kohärenz, während die Innenräume flexibel bleiben.

Atelier Fanelsa

Architecture

Entwurfspartner

Atelier Fanelsa untersucht zeitgenössische Formen des Arbeitens, Wohnens und „Commoning“. Das Studio mit Basis in Berlin und Gerswalde garantiert eine hohe architektonische Qualität.

Marius Schilling

Interior

Interior & Fit-Out

Marius Schilling entwickelt Innenraumkonzepte mit einem feinen Gespür für Materialien, Licht und maßgeschneiderte Details, damit jeder Raum mit dem Ensemble verbunden bleibt.

Ludivine Gragy

Landscape

Grünräume

Von der 430m² Streuobstwiese bis zum Feuchtbiotop (600m²): Ludivine Gragy plant den Außenraum als produktives System mit wassergebundenen Wegen und lebendigen Böden.

Craft Practice

Craft

Materialität

Wir arbeiten mit Partnern, die ihr Handwerk verstehen. Kooperationen für Lehmbau, Reetdeckung und innovativen Holzbau sorgen dafür, dass Materialien in Würde altern.

Das Grundstück

Die Herrenkoppel liegt am südwestlichen Rand von Gerswalde, nur etwa 500 Meter vom Dorfzentrum entfernt. Das ca. 6.000 m² große Plangebiet besticht durch eine markante Hanglage mit weitem Blick und einen alten Baumbestand. Direkt angrenzend beginnt das UNESCO-Biosphärenreservat Schorfheide-Chorin – eine Lage, welche die Quellen als „tätigschön“ würdigen, plus ca. 2.800 m² landwirtschaftliche Fläche für Schafe oder Nutzpflanzen.
Bauland Mischgebiet
Lageplan Placeholder

Lageplan (Placement)

* Hover to reveal buildings and pathways.

Architektur

Wir bauen im Einklang mit der Natur: Drei Langhäuser an der Hangkante verbinden modernes Leben und Arbeiten. Ein Gemeinschaftspavillon schafft Raum für Begegnung, während ökologische Freiflächen und eine bewusste Bauweise die Schönheit der Herrenkoppel schützen.
Exterior Facades

Außenfassaden

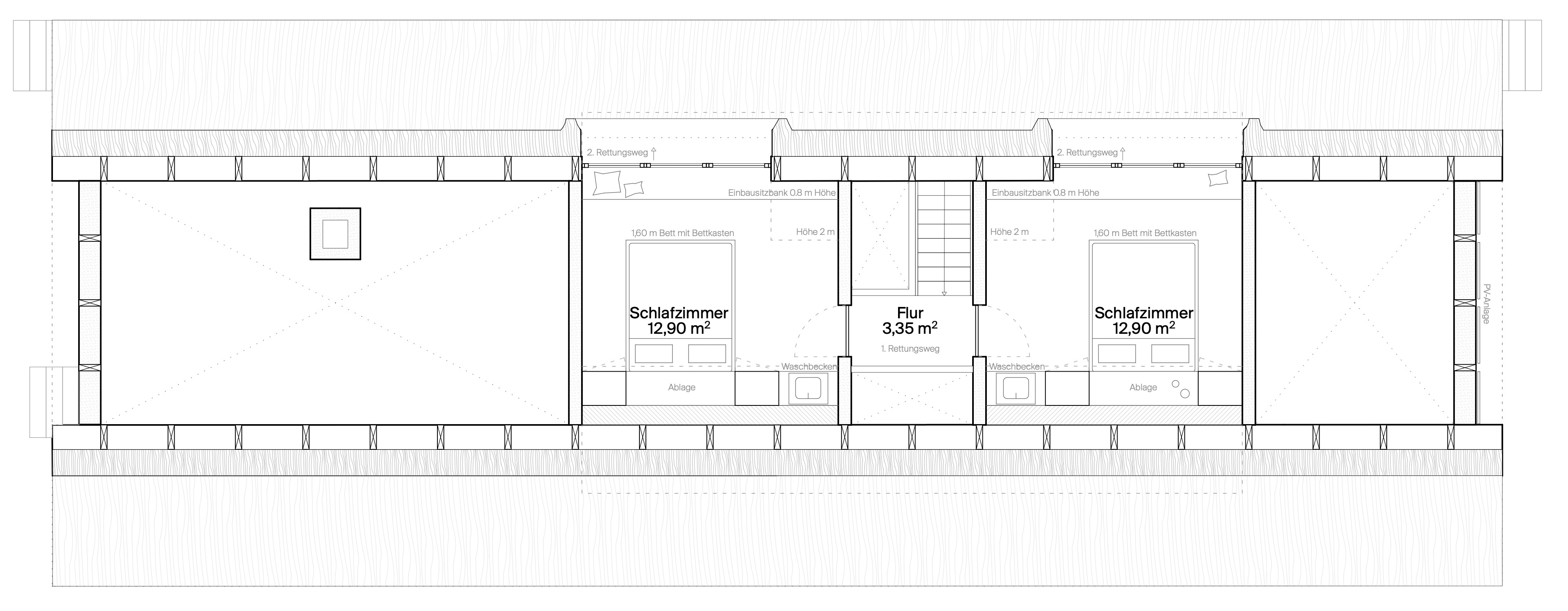
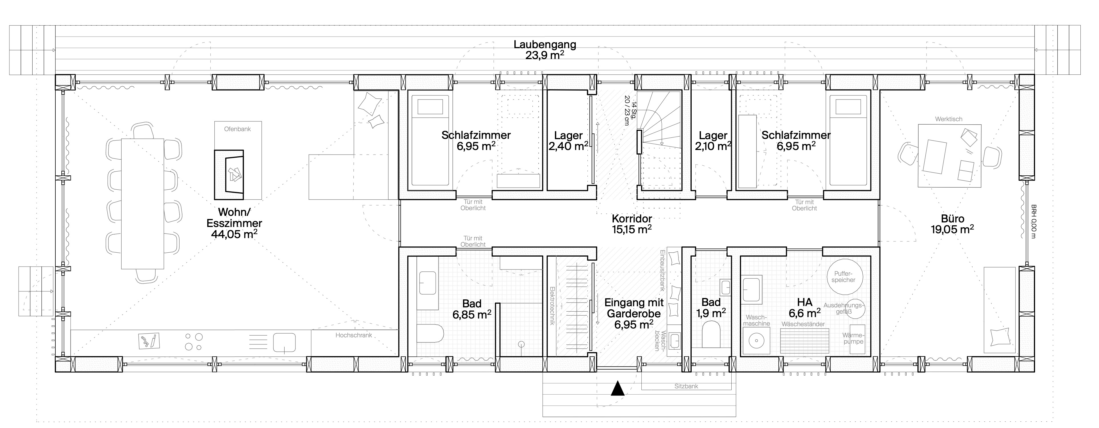
Grundriss EG — Haus A

Grundriss EG

Grundriss OG — Haus A

Grundriss OG

Hier zeigen wir beispielhaft Haus A. Im Exposé findet ihr weitere Varianten (z. B. Haus B und die Doppelhaus-Variante Haus C) – je nach Teilung sind 4–6 Parteien in drei Häusern möglich.

Aufruf zur Beteiligung

Gemeinsam auf der Herrenkoppel: Wir suchen Mitstreiter für eine kleine Baugruppe in Gerswalde, die Qualität im Detail und Großzügigkeit im Freiraum schätzt. Es geht nicht um maximale Individualisierung der Hülle, sondern um ein kuratiertes Ensemble. Wir bauen für das Leben, nicht für die Spekulation – mit flexiblen Innenräumen für eure Bedürfnisse.

1

Die Häuser

Flexibel teilen: Unser Ensemble besteht aus drei Langhäusern, die sich behutsam in den Hang einfügen. Die Grundrisse zeigen verschiedene Varianten (z. B. Wohnen+Arbeiten, Teilung in zwei Wohneinheiten, Doppelhaus). Je nach Teilung sind 4–6 Parteien in drei Häusern möglich.

2

Viel Platz

Zum Leben: Zum Projekt gehört nicht nur das ca. 6.000 m² große Plangebiet, sondern auch angrenzende 2.800 m² landwirtschaftliche Fläche für Gärten und Streuobst.

3

Faire Struktur

Herrenkoppel basiert auf einem transparenten Erbbaurechtsmodell, das Boden vom Bau trennt. Statt eines Grundstückskaufs leisten Beteiligte einen einmaligen Fixbetrag zur Abgeltung der Projektvorleistungen und eine moderate laufende Erbpacht.

Erster Schritt

Info-Paket anfragen

Dies ist eine unverbindliche Anfrage. Wir melden uns mit dem ausführlichen Exposé, dem finanziellen Rahmen (Erbpacht-Modell) und dem Zeitplan. Lernt uns und das Konzept kennen – wir freuen uns auf den Austausch.

Wir respektieren eure Privatsphäre.

Oder schreibt uns direkt: hello@herrenkoppel.de